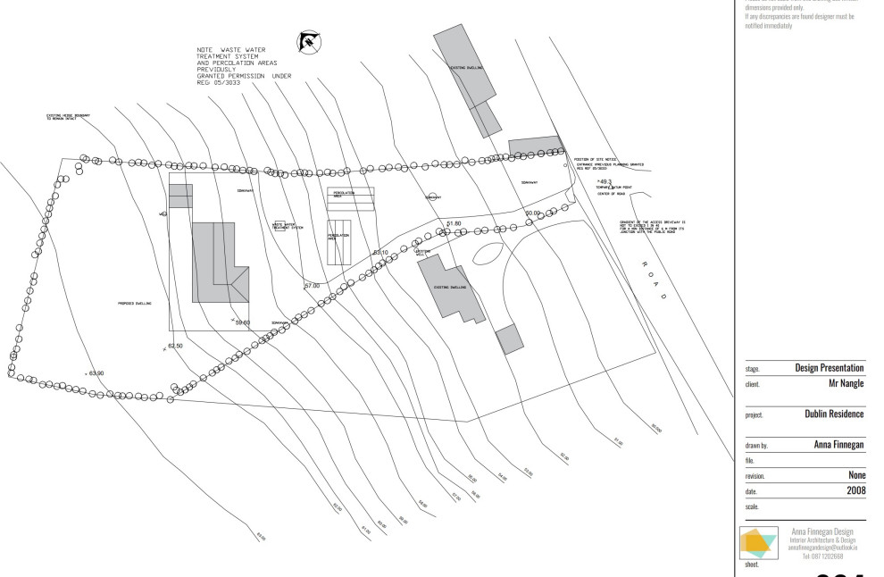
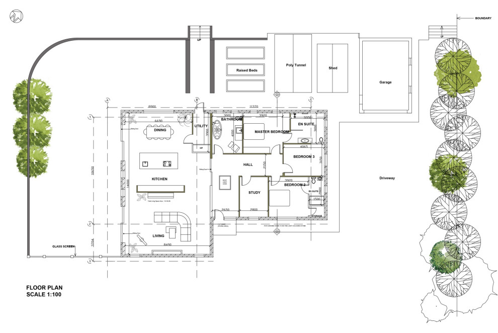
This four-bedroom home was fully designed and built by Anna Finnegan Design, drawing inspiration from the iconic Prairie Style of the early 1900s. The interior centres around spacious, open-plan living, with a single partition wall subtly separating the kitchen from the living room to preserve flow while defining each space.
Large sliding doors open onto an expansive patio area, seamlessly connecting the indoors with the outdoors and flooding the home with natural light. The result is a warm, contemporary interpretation of Prairie architecture, designed for modern family living.
